• 上海上海写字楼出租

400-9610-586

您当前的位置:找办公室 > 黄浦办公室出租 > 外滩办公室出租 > 外滩SOHO

黄浦 外滩SOHO 343平米 精装修

7.58
万元/月 单价:7.27元/m²⋅天
343㎡
建筑面积
34~69个工位
可容纳工位
精装修
装修程度
免费预约看房
400-9610-586

办公室概况

基础信息

所在楼层

中区

物业公司

SOHO中国物业

朝向

朝东南

装修情况

精装修

面积信息

343㎡,使用率约73%,可容纳工位34~69个

是否可分割

不可分割

电梯数

客梯8部,货梯2部

可 注 册

相关费用

日租金

7.27元/㎡/天

月租金

约7.58万元/月

物业费

28元/㎡/月

停车费

1500元/位•月

租赁信息

付款方式

押3付1

最短租期

24个月

免租期

可以面谈

看房时间

联系顾问,随时可看

房源描述

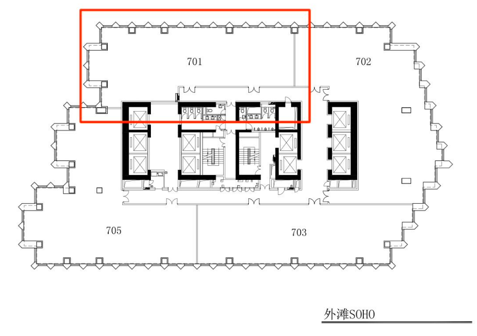
外滩SOHO办公室出租

室号:701室

面积:343㎡

租金报价:7.27元/㎡/天(不含增值税5%)

月租金:8万/月

物业费:28元/㎡/月

装修:精装可拎包入住

房源优势:

1、外滩独特的地理位置;

2、地铁10&14号线双轨,距离项目约300米;

3、精装小面积,4个隔断,可拎包入驻;

4、房型方正,分割利用率高;

5、单价低,总价实惠;

项目特色:LEED金级新风过滤系统;提供24小时冷热直饮水;交通便捷;商业配套齐全。



本楼盘在租面积

最小面积63

最大面积2072

本楼盘平均租金

最低租金3.20元/m²⋅天

最高租金7.33元/m²⋅天

外滩SOHO

  • 5.72 元/m²⋅天  起
  • 竣工时间 2015年
  • 车位数量 约699个
  • 物业公司 SOHO中国物业
  • 在租户型 80个房源

周边楼盘

展开展开
热门写字楼:
金融街静安中心 湾谷科技园 虹桥总部1号 虹桥阿里中心 信泰中心
区域写字楼:
浦东 黄浦 徐汇 长宁 静安 普陀 虹口 杨浦 闵行 宝山 嘉定 金山 松江 青浦 奉贤 崇明
商圈写字楼:
安亭 鞍山 八佰伴 半淞园路 宝山路 北蔡 北京西路 北桥 北外滩 北新泾 曹家渡 曹路 曹杨新村 漕宝路 漕宝路地铁 漕河泾 昌平路 程家桥 川沙 春申 打浦桥 大柏树 大场 大华 大连路 大宁路 东兰新村 东明路 东外滩 董家渡 动物园 洞泾 丰庄 枫林路 封浜 复旦大学 复兴公园 复兴中路 甘泉路 高境 共富 共和新路 共康 古北 顾村 光新 广中路 航头 和平公园 虹口足球场 虹梅路 虹桥 虹桥火车站 花木 华漕 华泾 华师大 华新镇 淮海路 淮海西路 淮海中路 黄浦滨江 黄兴 惠南 嘉定城区 嘉定新城 嘉定镇 建国西路 江宁路 江桥 江苏路 江苏路地铁 江湾 交大 金虹桥 金沙江路 金山工业园 静安寺 静安新城 九亭 菊园新区 康桥 控江路 老北站 老闵行 老西门 李子园 联洋 凉城 临平路 六里 龙柏金汇 龙华 龙阳路地铁站 鲁班路 鲁迅公园 陆家嘴 罗店 罗泾 罗南 马陆 梅陇 梅园 庙行 南方商城 南京东路 南京西路 南码头 南外滩 南翔 彭浦 平凉路 浦东外环 浦江 七宝 七莘路 前滩 青浦新城 曲阳路 人民广场 三林 上大 上海南站 上南新村 上师大 莘庄 莘庄工业区 石泉路 世博滨江 世纪公园 水产路 四川北路 四平路 泗泾 松江大学城 松江老城 淞宝 淞南 唐镇 塘桥 桃浦 提篮桥 天目西路 天山路 田林 通河新村 外冈 外高桥 外滩 万里城 万体馆 汶水路 吴泾 吴淞 五角场 五里桥 武宁路 西藏北路 西藏南路 西康路 仙霞新村 襄阳南路 斜土路 新城 新华路 新江湾城 新客站 新天地 新闸路 徐家汇 徐泾 延长路 杨行 洋泾 友谊路 豫园 源深竹园 张江 长风新村 长寿路 长阳路 长征 赵巷 肇嘉浜路 真光新村 真如 镇宁路 植物园 芷江西路 中山北路 中山公园 中原 中远两湾城 重固 周家嘴路 周浦 朱桥 竹园商贸区 颛桥 金桥 闸北公园 衡山路 岚皋路 泥城镇 奉城 大宁 凉城路 火车站 虹桥镇 延安西路 曹杨路 曲阳 黄渡 临平 淞南高境 虹桥开发区 甘泉宜川 刘行 长风生态商务区 七浦路 后滩 北站 南桥新城 周家嘴 平凉 中山 东方路 松江新城 武定路 宜川路 延平路 上南地区 淮安路 胶州路 临港 新桥 御桥