• 上海上海写字楼出租

400-9610-586

您当前的位置:找办公室 > 静安区办公室出租 > 火车站办公室出租 > 金融街融悦中心

静安区 金融街融悦中心 3569平米 简单装修

44.51
万元/月 单价:4.1元/m²⋅天
3569㎡
建筑面积
357~714个工位
可容纳工位
简单装修
装修程度
免费预约看房
400-9610-586

办公室概况

基础信息

所在楼层

中区

物业公司

金融街物业股份有限公司

朝向

四面采光

装修情况

简单装修

面积信息

3569㎡,使用率约70%,可容纳工位357~714个

是否可分割

不可分割

电梯数

客梯6部,货梯1部

可 注 册

相关费用

日租金

4.1元/㎡/天

月租金

约44.51万元/月

物业费

37元/㎡/月

停车费

1500元/位月

租赁信息

付款方式

押3付1

最短租期

24个月

免租期

可以面谈

看房时间

联系顾问,随时可看

房源描述

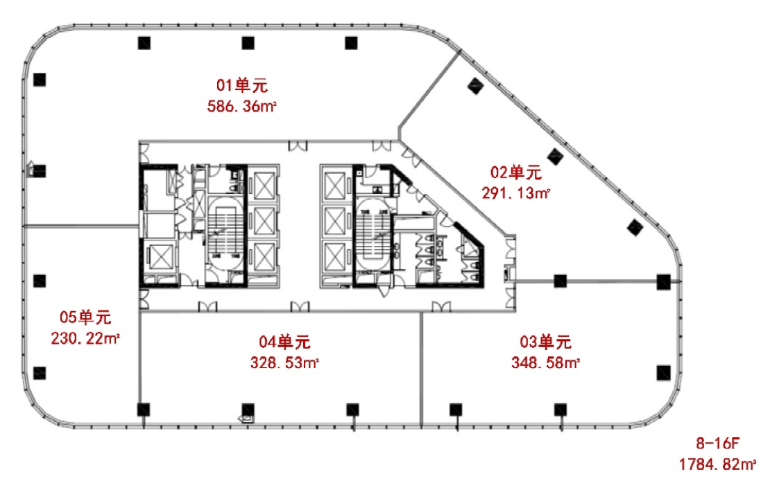
金融街融悦中心 E座

项目区位:近上海火车站,步行约200米可达轨道交通1、3、4号线

租赁单元:15-16层(名义楼层)

可租面积:3569㎡

租金报价:4.1元/平米/天

核心参数

得房率:约70%

电梯配置:3部客梯 + 1部货梯

空调系统:中央空调 + 风机盘管

物业费:33.3元/月/㎡

商业配套

项目自带约4万平方米商业综合体


本楼盘在租面积

最小面积245

最大面积3569

本楼盘平均租金

最低租金2.00元/m²⋅天

最高租金4.10元/m²⋅天

金融街融悦中心

  • 2.46 元/m²⋅天  起
  • 竣工时间 2021年
  • 车位数量 419个
  • 物业公司 金融街物业股份有限公司
  • 在租户型 9个房源

周边楼盘

展开展开
热门写字楼:
金融街静安中心 湾谷科技园 虹桥总部1号 虹桥阿里中心 信泰中心
区域写字楼:
浦东 黄浦 徐汇 长宁 静安 普陀 虹口 杨浦 闵行 宝山 嘉定 金山 松江 青浦 奉贤 崇明
商圈写字楼:
安亭 鞍山 八佰伴 半淞园路 宝山路 北蔡 北京西路 北桥 北外滩 北新泾 曹家渡 曹路 曹杨新村 漕宝路 漕宝路地铁 漕河泾 昌平路 程家桥 川沙 春申 打浦桥 大柏树 大场 大华 大连路 大宁路 东兰新村 东明路 东外滩 董家渡 动物园 洞泾 丰庄 枫林路 封浜 复旦大学 复兴公园 复兴中路 甘泉路 高境 共富 共和新路 共康 古北 顾村 光新 广中路 航头 和平公园 虹口足球场 虹梅路 虹桥 虹桥火车站 花木 华漕 华泾 华师大 华新镇 淮海路 淮海西路 淮海中路 黄浦滨江 黄兴 惠南 嘉定城区 嘉定新城 嘉定镇 建国西路 江宁路 江桥 江苏路 江苏路地铁 江湾 交大 金虹桥 金沙江路 金山工业园 静安寺 静安新城 九亭 菊园新区 康桥 控江路 老北站 老闵行 老西门 李子园 联洋 凉城 临平路 六里 龙柏金汇 龙华 龙阳路地铁站 鲁班路 鲁迅公园 陆家嘴 罗店 罗泾 罗南 马陆 梅陇 梅园 庙行 南方商城 南京东路 南京西路 南码头 南外滩 南翔 彭浦 平凉路 浦东外环 浦江 七宝 七莘路 前滩 青浦新城 曲阳路 人民广场 三林 上大 上海南站 上南新村 上师大 莘庄 莘庄工业区 石泉路 世博滨江 世纪公园 水产路 四川北路 四平路 泗泾 松江大学城 松江老城 淞宝 淞南 唐镇 塘桥 桃浦 提篮桥 天目西路 天山路 田林 通河新村 外冈 外高桥 外滩 万里城 万体馆 汶水路 吴泾 吴淞 五角场 五里桥 武宁路 西藏北路 西藏南路 西康路 仙霞新村 襄阳南路 斜土路 新城 新华路 新江湾城 新客站 新天地 新闸路 徐家汇 徐泾 延长路 杨行 洋泾 友谊路 豫园 源深竹园 张江 长风新村 长寿路 长阳路 长征 赵巷 肇嘉浜路 真光新村 真如 镇宁路 植物园 芷江西路 中山北路 中山公园 中原 中远两湾城 重固 周家嘴路 周浦 朱桥 竹园商贸区 颛桥 金桥 闸北公园 衡山路 岚皋路 泥城镇 奉城 大宁 凉城路 火车站 虹桥镇 延安西路 曹杨路 曲阳 黄渡 临平 淞南高境 虹桥开发区 甘泉宜川 刘行 长风生态商务区 七浦路 后滩 北站 南桥新城 周家嘴 平凉 中山 东方路 松江新城 武定路 宜川路 延平路 上南地区 淮安路 胶州路 临港 新桥 御桥