东方金融广场招租信息
面积: 753平报价:4元/㎡/天
地址:上海市浦东新区世纪大道1168号B座
业主 :上海东方金融广场企业发展有限公司
物业:第一太平戴维斯物业顾问(北京)有限公司上海分公司
电梯:客梯:高地区各4部 货梯:2部
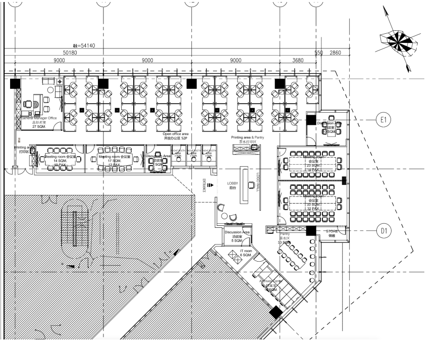
楼层: 16F
装修:带装修交付,户型朝东南
物业管理费:32 元/平方/月
空调系统:采用VAV系统,开放时间为:周一-周六 8:00-19:00
交通:地铁2、4、6、9号线世纪大道站12号出口及多条公交线路到达
大楼配套:交通银行、华一银行、罗森便利店、COSTA咖啡。












