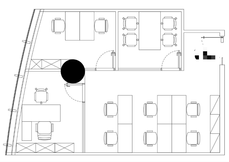
SOHO东海广场写字楼出租
单元:3303室
参考面积:118平米月租金:24600元/月 含物业
布局:3个隔间+6个工位
地址:上海市静安区静安寺街道铜仁路299号
地铁:2/7号线静安寺站






行业资讯
1
青浦:美的全球创新中心——正式启用
10-27
2
青浦的波司登总部大楼
10-27
3
波司登全球总部落地虹桥 今日正式奠基
10-27
4
闵行这座创业城计划9月启用!将打造上海人才新地标
10-27
5
莱坊发布2025年第一季度,上海甲级写字楼市场报告
10-27
6
科技板块需求持续活跃 推升深圳写字楼市场环比增长
10-27
找房贴士
免费电话预约
400-9610-586
(全天 24小时 在线接听)