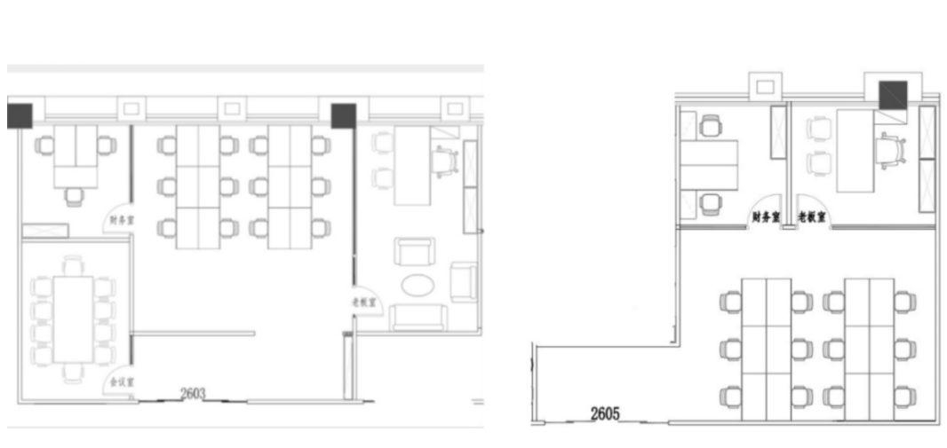
证大五道口广场2603-2605室
参考面积:196㎡+117㎡=313㎡
报价:4.6元/㎡/天
物业:26元/㎡/月
以上价格不含税,服务费税率6%
格局:logo墙+5隔断+24工位
地铁:9/18号线杨高中路地铁上盖
朝向:朝北







行业资讯
1
青浦:美的全球创新中心——正式启用
12-27
2
青浦的波司登总部大楼
12-27
3
波司登全球总部落地虹桥 今日正式奠基
12-27
4
闵行这座创业城计划9月启用!将打造上海人才新地标
12-27
5
莱坊发布2025年第一季度,上海甲级写字楼市场报告
12-27
6
科技板块需求持续活跃 推升深圳写字楼市场环比增长
12-27
找房贴士
免费电话预约
400-9610-586
(全天 24小时 在线接听)