上海中垠广场写字楼出租信息
世界北外滩 商务新范本A座租金:4元/平/天
物业费:32元/平/月
基本信息
上海中垠广场约17万方地铁上盖商务综合体,涵盖两栋21层甲级办公、一栋4层总部独栋办公,以及4层商业裙房组成。
商务新标杆-约17万方商务综合体
极速交通-19号线上盖&4号线五十米
摩天封面-两栋百米办公,封面地标
醇熟配套-自带约3万方主题商业
品质兑现-LOW-E玻璃\约11米挑高大堂
四重认证-WELL铂金、LEED铂金、绿建三星、健康建筑二星。

地铁19号线(在建)上盖-周家嘴路站
地铁4号线-临平路站五十米

上海中垠广场A座参数
楼栋体量:办公建面约31171.25㎡ 
总楼层数:21F(办公5-21F)
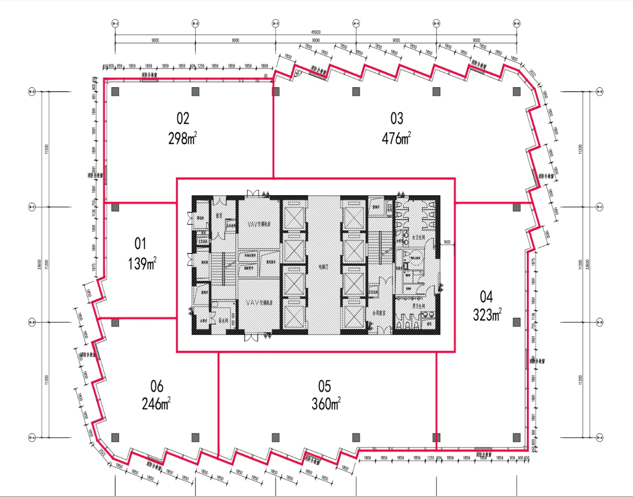
标准层:面积约1800㎡ ,层高约4.4m
电梯数量:7部客梯+1部货梯+2部车库转换梯


上海中垠广场B座参数
楼栋体量:办公建面约36174.03㎡ 
总楼层数:21F(办公2-21F)
标准层:面积约1800㎡ ,层高约4.4m
电梯数量:7部客梯+1部货梯+2部车库转换梯

上海中垠广场C座参数
楼栋体量:办公建面约5241.49㎡ 
总楼层数:4F
1F建面约1133.41㎡ ,层高约6m
2F建面约1568.56㎡ ,层高约4.5m
3F建面约1568.57㎡ ,层高约4.5m
4F建面约970.95㎡ ,层高约4.5m


