内外联大厦办公室出租
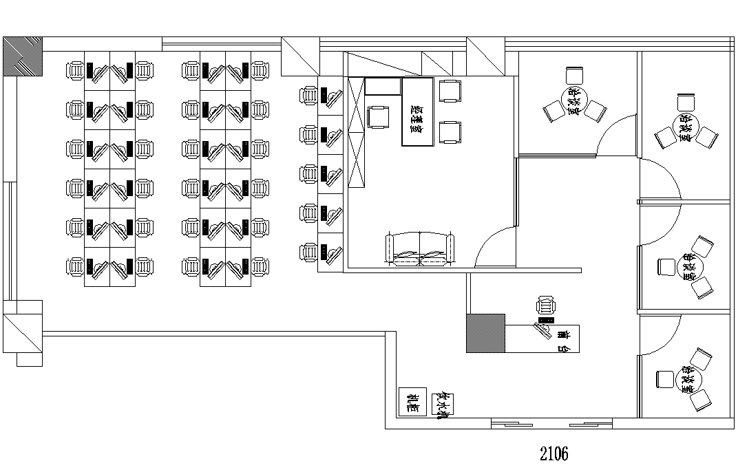
室号:2106室参考面积:292平
格局:前台,5隔间,29工位动静分离
特价:3.5元/平/天
物业:27元/平/月
总价:38970元/月(不含税)
年限:2年
付款:押3付1
空调:周一至周五8:30-18:00
朝向:东南
交通:9号线商城路地铁站2号口上盖
停车:1200元/月 ,临停10元/小时,50元/天







行业资讯
1
青浦:美的全球创新中心——正式启用
03-06
2
青浦的波司登总部大楼
03-06
3
波司登全球总部落地虹桥 今日正式奠基
03-06
4
闵行这座创业城计划9月启用!将打造上海人才新地标
03-06
5
莱坊发布2025年第一季度,上海甲级写字楼市场报告
03-06
6
科技板块需求持续活跃 推升深圳写字楼市场环比增长
03-06
找房贴士
免费电话预约
400-9610-586
(全天 24小时 在线接听)