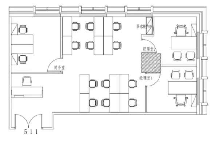
凯龙金领大厦40幢东楼511室
净租金:11888元/月 物业费元4500/月
净套价:16388元/月
含税总价:17371元/月(税点6%)
参考面积:155㎡
前台+3隔间(经理室1+经理室2+财务室)+12员工位
5楼为新精装配楼层已出租小半
55平5000元起~505平。






行业资讯
1
青浦:美的全球创新中心——正式启用
10-15
2
青浦的波司登总部大楼
10-15
3
波司登全球总部落地虹桥 今日正式奠基
10-15
4
闵行这座创业城计划9月启用!将打造上海人才新地标
10-15
5
莱坊发布2025年第一季度,上海甲级写字楼市场报告
10-15
6
科技板块需求持续活跃 推升深圳写字楼市场环比增长
10-15
找房贴士
免费电话预约
400-9610-586
(全天 24小时 在线接听)