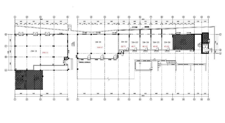
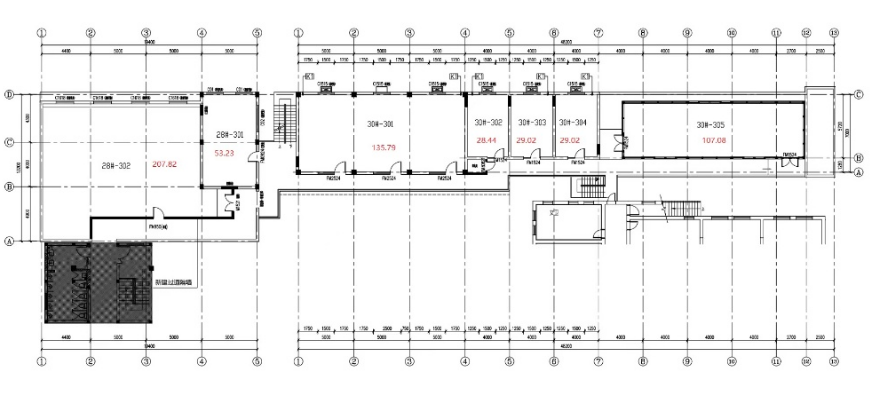
【30号】独栋 总高3层
【总 面积】1041.41平米
【30号1层】面积373.83平米
【30号2层】面积338.23平米
【30号3层】面积329.35平米
【租 金】3.5元/平/天
【交付标准】毛坯/可定制装修
【物业 费】0.6元/平米/天
【层 高】1F 3.7米,2F 3米,3F 3米
【付款方式】押三付三
【车位 费】800元/月
【交通配套】12号/18号线宁国路站
独栋优势:
1、市中心独栋
2、有独立门面进出、形象品牌佳
3、独栋采光、通风一流,房间可灵活分割
4、红花绿树,曲径通幽,园区环境优美
5、园区24小时运营。
一期共6栋独栋1-3层(已满租)
二期共2栋独栋1-3层 火热招租
【交通优势】
双轨一桥一线 交通全畅通
双轨:12号线宁国路站步行约700米,
18号线平凉路站;
双环:距离内环约200米,中环约3公里;
一线:建成后的北横道线将连接上海东西主
轴,到虹桥机场约30分钟车程;
一桥:杨浦大桥实现与浦东的区域互通;
三隧:大连路隧道、江浦路隧道和军工路隧
道;
【商业配套 】:
百联滨江购物中心、长阳创谷
【已入驻知名企业】
• 一期已入驻客户——杨浦区妇幼保健院、杨浦区中医院,宁国坊已形成医疗服务行业的聚集效应。目前项目围绕医疗机构,园区招商引进了妇婴医疗和保健用品、中医服务、康复器械等医疗服务上下游企业入驻。








