参考面积:300.24平
报价:5.2/平方米
物业:30元/㎡月
朝向:东北(双面采光)。
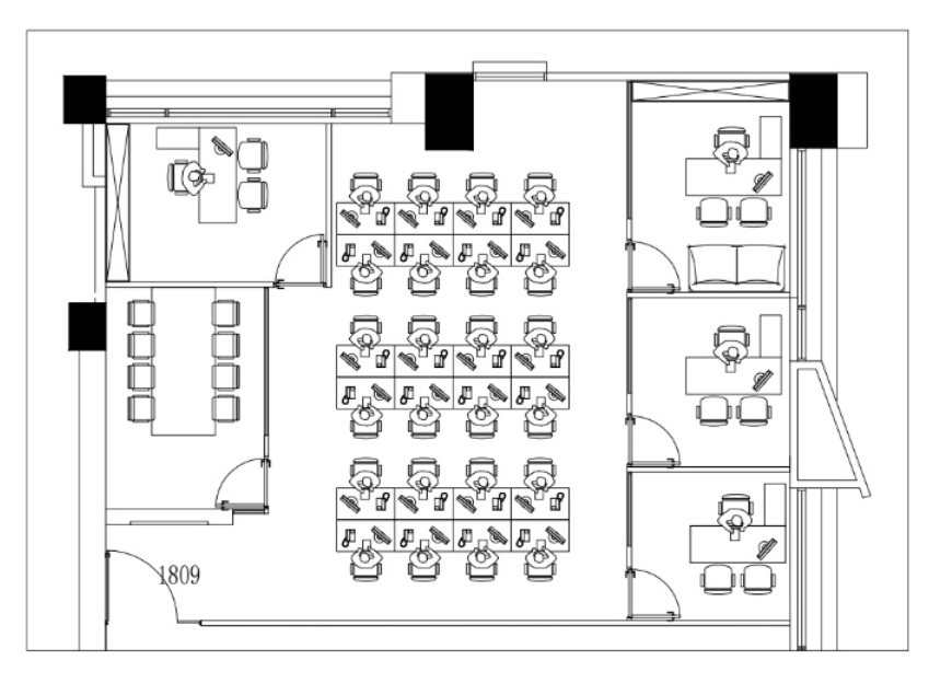
格局:液晶显示屏背景墙+5隔间+24工位。
停车费:1500元/月,10元/时,日封顶120元。
交通:旺旺大厦距离2、12、13号线南京西路200米。
空调:中央空调,早上8:30-晚上6:30,周六早上8:30-下午13.00。

旺旺大厦办公室平面图

旺旺大厦办公室图片







15
2424-10
静安旺旺大厦办公室出租 300㎡,精装修
来源:乐租办公
浏览量:139
静安旺旺大厦办公室出租 300㎡,精装修,格局:液晶显示屏背景墙+5隔间+24工位。报价:5.2/平方米。
空调:中央空调,早上8:30-晚上6:30,周六早上8:30-下午13.00。









行业资讯
1
青浦:美的全球创新中心——正式启用
10-15
2
青浦的波司登总部大楼
10-15
3
波司登全球总部落地虹桥 今日正式奠基
10-15
4
闵行这座创业城计划9月启用!将打造上海人才新地标
10-15
5
莱坊发布2025年第一季度,上海甲级写字楼市场报告
10-15
6
科技板块需求持续活跃 推升深圳写字楼市场环比增长
10-15
找房贴士
免费电话预约
400-9610-586
(全天 24小时 在线接听)