627国际人才港1号楼三层独栋出租
地址:上海市普陀区宁夏路627号
商圈:环球港园区:央企园区,区政府示范园区
配套:商务服务,扶持政策,园区食堂等
交通:轨交3/4/13/11/14号线100米,2分钟车程至内环金沙江路上匝道
布局: 3层独栋(毛坯)整租
面积:约750平米
租金:6万/月
物业: 22元/平/月
租赁期限:3-5年
付款方式:押三付一,租金季度支付



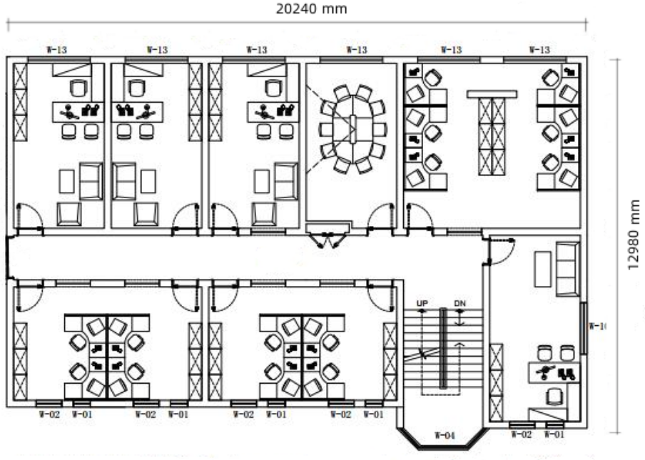
一楼布置图,层高约3.4米

二楼布置图,层高约3.2米

三楼布置图,空间开阔,层高约2.8~4米

07
2525-05
627国际人才港1号楼三层独栋出租,面积750平米
来源:乐租办公
浏览量:147
627国际人才港1号楼三层独栋出租,面积750平米,租金6万/月,物业费22元/平/月,租赁期限3-5年
地址:上海市普陀区宁夏路627号
商圈:环球港付款方式:押三付一,租金季度支付



一楼布置图,层高约3.4米

二楼布置图,层高约3.2米

三楼布置图,空间开阔,层高约2.8~4米

行业资讯
1
晶耀虹桥正式竣工交付:总投资超80亿元
05-07
2
蔡司在上海浦东设立总部园区
05-07
3
青浦:美的全球创新中心——正式启用
05-07
4
青浦的波司登总部大楼
05-07
5
波司登全球总部落地虹桥 今日正式奠基
05-07
6
闵行这座创业城计划9月启用!将打造上海人才新地标
05-07
找房贴士
免费电话预约
400-9610-586
(全天 24小时 在线接听)