上海西岸金融城位于徐汇滨江板块,项目共28个地块,约180万平方米,涵盖写字楼、商业、酒店、会展、文化、体育、住宅等多类业态。
为建设“上海2035”,上海西岸着力打造数字经济、生命健康、文化创意、现代金融“四核驱动”的国际产业集群,加快建设具有世界影响力的社会主义现代化国际大都市的卓越水岸。该区域已入驻企业包括华为、小米、阿里巴巴、微软、腾讯、CCTV、湖南卫视等。

西岸金融城为上海市徐汇区龙腾大道3399号地块项目,由香港置地打造,预计2024年底交付。
区位环境
西岸金融城位于徐汇区东部黄浦江畔,衔接徐家汇城市副中心,紧邻内环线。项目毗邻跨江慢行系统,前瞻性衔接黄浦江两岸。


时尚生活新启源——超维奢华购物体验目的地、2座文华东方酒店、13万平方米国际服务式公寓。
新一代城市文旅目的地——西岸漩心,大师倾心力作百年浦江新地标;南浦火车站旧址,传承文化场所再造精品艺术空间;光启大道,贯通种子馆、天文馆与梯田多元人文空间;会展中心,容纳缤纷商务活动。
区位优势
西岸金融城位于徐汇滨江核心区位,坐拥1.4公里江岸线、280米滨江天际线。
建筑信息
上海西岸金融城总建筑面积约180万平方米,总投资约600亿元人民币,包括项目布局约62.5万平方米的优质写字楼,约23万平方米的超大商业零售空间,以及奢华度假酒店、文化表演及商业首发秀场、滨水公寓住宅、城中盎然绿地等。
LEED/WELL铂金级双认证,从科技、健康、生态等全方位关注使用者需求,为进驻企业提供环境友好、低能耗的空间解决方案。


大堂效果图


电梯、洗手间效果图

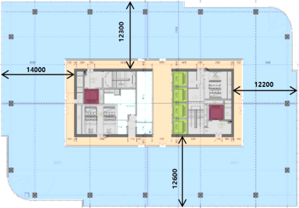
低区标准层平面

高区标准层平面

